物 件名:ザ・プールハウス富津
目次
- 1 都心から1時間の好アクセス。富津の美しい自然と調和する、プライベートプール付きデザイナーズ住宅
- 2 土地200坪超!あなたの理想のオアシスを!
- 3 富津の特等席に、あなただけの「邸宅」を描く。プライベートプールと暮らす、至高のキャンバス。
- 4 【提案の間取り図】
- 5 間取り図 2階
- 6 窓を開ければ、そこはプライベートラグーン
- 7 愛犬と、仲間と、至福の「整い」を。多才な可能性を秘めた私邸。
- 8 ダイニングから眺める、青く澄んだ水景。日常を忘れさせる極上の時間。
- 9 富津海水浴場
- 10 富津公園
- 11 イオンモール富津
- 12 マザー牧場
- 13 三井アウトレットパーク
- 14 ブリストヒルゴルフクラブ
- 15 至福の眠りと目覚めを約束する場所
- 16 物件概要
- 17 【限定1区画】資料を取り寄せる
都心から1時間の好アクセス。
富津の美しい自然と調和する、
プライベートプール付きデザイナーズ住宅
フリーダイヤル⇒ 0120-533-508
土地200坪超!あなたの理想のオアシスを!

富津の特等席に、あなただけの「邸宅」を描く。
プライベートプールと暮らす、至高のキャンバス。

※完成イメージ
都心から約1時間。千葉県・富津の穏やかな海辺に、 「建築条件付き売地」として誕生する、特別な1区画。掲載しているパースや間取りは、この地のポテンシャルを最大限に引き出すための一つの「正解」にすぎない。 しかし、ここから始まるのはあなただけの物語です。光が降り注ぐリビング、水面が揺れるプライベートプール、 そして選び抜かれたハイエンドな設備。圧倒的な開放感とクオリティを。このパースを超える理想の空間を、 富津の空の下で形にしてみませんか。
【提案の間取り図】
建物配置のイメージ

・設計士のこだわりと、あなたの理想が響き合う。
当社設計士が富津の光と風を読み解き、20.9帖の大空間LDKや全居室からプールへ直接繋がる動線を緻密にプランニング。屋外には本格サウナや焚き火を囲むファイヤーピットを配し、五感を解き放つ「整い」の環境を整えました。この洗練されたプランをベースに、自由設計であなただけのこだわりを反映させることも可能です。プロの知恵とオーナーの感性が融合する、世界にひとつの邸宅を。
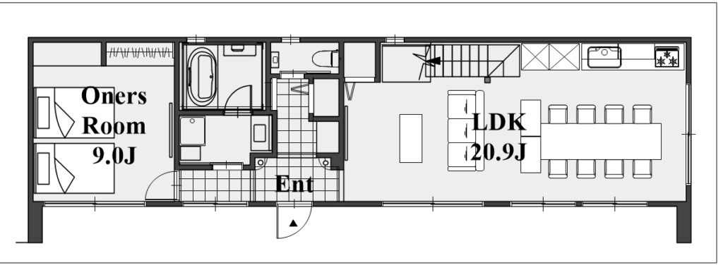
間取り図 1階

約21帖のLDKは、大型のダイニングやソファを置いてもなお、余白が生まれる大空間。中央の動線を境に、寝室エリアを独立させることで、多人数が集うシーンでも心から寛げる静寂を確保しました。
この間取りをベースに、あなたのライフスタイルに合わせた微調整も可能です。
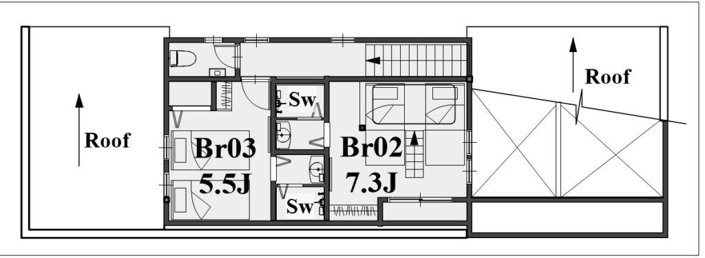
間取り図 2階

オーシャンビューを望む高台の邸宅。1階は広大なプールガーデンとLDKが一体化し、BBQも愉しめるリゾート空間です。2階には海と山の両景を望むラウンジやラナイを備え、移住にも別荘にも最適な贅沢な設計です。
窓を開ければ、そこはプライベートラグーン

※完成イメージ
20.9帖の大空間LDKや寝室から直接プールサイドへ。全居室が水辺と繋がる開放的な動線に加え、屋外には本格サウナとジャグジー、焚き火を囲むファイヤーピットを完備。富津の自然の中で「整い、癒される」贅沢が日常になります。建築条件付き売地だからこそ、このパースを基にした自由設計も可能。唯一無二のリゾートライフをここから。
愛犬と、仲間と、至福の「整い」を。
多才な可能性を秘めた私邸。
.jpg)
※完成イメージ
富津の光を浴びて、愛犬が専用プールではしゃぎ、仲間たちはサウナとファイヤーピットで心ゆくまで語らう。当社設計士が描き出したこのプランは、単なる別荘の域を超え、家族の思い出を刻む場所として、あるいは洗練された保養所や民泊(バケーションレンタル)としても比類なきポテンシャルを発揮します。20.9帖の大空間LDK を中心に、全居室から直接アクセスできる水辺の動線。この完成された「理想の雛形」をベースに、自由設計でさらなるこだわりを加えることも可能です。
ダイニングから眺める、青く澄んだ水景。
日常を忘れさせる極上の時間。

※完成イメージ
ダイニングに座れば、目の前に広がるのは煌めくプールと青空のコントラスト。まるでリゾートホテルのような、開放感あふれる景色を独り占めできます。プールサイドに大画面の液晶ビジョンを設置すれば、夜は自分だけのプライベートシアターに早変わり。夜風を感じながらお気に入りの映画を愉しむ、そんな贅沢なひとときも思いのままです。
富津海水浴場


富津海水浴場まで徒歩12分:都心から約1時間、波静かで透明度の高い「富津海水浴場」は、まさに内房の隠れた楽園です。遠浅の海は家族連れに優しく、SUPやカヤックなどアクティビティも一年中愉しめます。夏の夜を彩る「富津花火大会」も大きな魅力のひとつ。夜空と海面を染める大輪の華を、喧騒を離れた特等席で愉しめるのは、この地を所有するオーナーだけの特権です。対岸にそびえる富士山と黄金色の夕日、そして花火。富津の美しさが、日常を極上のリゾートへと変えてくれます。
富津公園


富津公園まで車4分:富津公園(富津岬)は、東京湾に突き出た絶景の岬にある県立公園です。五葉松を模した「明治百年記念展望塔」からは360度の海景色と富士山が望め、夏は巨大プールやキャンプ、春は潮干狩りが楽しめます。ドライブやお散歩に最適な、海と緑を感じられる憩いのスポットです。
イオンモール富津

イオンモール富津まで車で9分:非日常に浸る邸宅から、車をわずか9分走らせるだけで大型ショッピングモール「イオンモール富津」に到着します。新鮮な食材が揃うスーパーマーケットはもちろん、日用品からファッション、飲食店、さらにはアミューズメント施設までがワンストップで完備。仲間とのBBQの買い出しや、長期滞在中のちょっとした用事もストレスなく済ませられる、理想的な距離感です。海辺の静寂を楽しみながら、都市の利便性も決して手放さない。この「ちょうどいい近さ」が、別荘として、あるいは民泊・保養所としての価値をさらに高めてくれます。
マザー牧場


マザー牧場まで車で33分:富津でのリゾートライフに彩りを添えるのが、車で33分の距離にある「マザー牧場」。四季折々の花々や動物たちとのふれあい、さらには味覚狩りや遊園地まで、世代を問わず一日中楽しめるエンターテインメントが揃っています。午前中は牧場の広大な自然を遊び尽くし、午後は邸宅へ戻ってプライベートプールやサウナでゆったりと疲れを癒やす。そんな、アクティブとリラックスを自由に行き来できる贅沢なロケーションです。愛犬と一緒に楽しめるエリアも多いため、ドッグランを楽しんだ後に「愛犬専用プール」のある自邸へ帰るという、ペットオーナーにとっても理想的な休日が叶います。
三井アウトレットパーク


富津の静寂な海辺に拠点を構えながら、最新のトレンドも手放さない。そんな贅沢を叶えるのが、車でわずか34分の距離にある「三井アウトレットパーク 木更津」です。
日本最大級の店舗数を誇るこのエリアには、国内外のハイエンドブランドやインテリアショップが集結。別荘で使うこだわりの家具選びや、仲間とのパーティーのためのショッピングも、思い立ったらすぐに出かけられる距離感です。
平日は都心の喧騒を離れて富津で過ごし、休日はアウトレットで華やかな時間を。利便性と非日常が共存するこの立地こそ、資産価値を支える大きな魅力です。
ブリストヒルゴルフクラブ

【リビングからの水景】室内からプールへとシームレスに続く、圧倒的な開放感あふれるLDK。家具や家電も備え付けられており、移住でも別荘でも、手に入れたその日から理想のリゾートライフをスタートできます。
至福の眠りと目覚めを約束する場所

【主寝室】ゆったりとした10帖の主寝室は、落ち着いたトーンの内装で上質な安らぎを演出します。デスクスペースも備えられ、窓からの眺望とともに、ワーケーションや静かな読書の時間にも最適なプライベート空間です。
物件概要
- 物件名:THE POOL HOUSE 富津
- 交通:JR内房線「青堀」歩61分
- 住所:千葉県富津市富津2390-1
- 土地:691.38m2(209.14坪)(実測)
- 建ぺい率:60%
- 容積率:150%
- 現況:更地
- 引き渡し:相談
- 道路:無、東6m幅(接道幅12.3m)
- 用途地域:第1種低層専用層地域
- 東京電力・公営水道、個別浄化槽、個別LPG
- 価格:1850万円(土地のみ)
この「FUTTSU」の邸宅は、単なる土地と建物ではありません。
都心から1時間、波静かな「富津海水浴場」に至近するこの邸宅は、土地と建物以上の価値を提供します。それは、あなた自身の「整い」の場所であり、愛犬との最高の思い出を刻む場所であり、仲間と語らう場所です。
当社設計士がこだわり抜いた、全居室からプールへと繋がる動線。本格サウナとファイヤーピットが日常を極上のリゾートへと変えます。この完成されたプランをベースに、自由設計でさらなる理想を形にすることも可能です。
別荘として、保養所として、あるいは民泊・バケーションレンタルとして。資産価値を、あなたのライフスタイルに合わせて多角的に活用できます。
【限定1区画】
資料を取り寄せる

※民泊としての収益実績についてもご相談承ります